Дома серии «111-142» или другими словами «Ленинградка» были построены в г. Красноярске в начале 1970-х годов и считаются переходной планировкой от "улучшенных" к "новостройкам"; 1 - 4 комнатные квартиры, не газифицированы; четырехкомнатные квартиры расположены только на первом этаже; ПД-1 из серии «111 – 142» некоторые макеты планировок ПД-1 по-прежнему комфортны для проживания и востребованы среди покупателей.
Подробная информация о серии
широкие возможности перепланировки, некоторые планировочные решения до сих пор комфортны и востребованы
маленькие ванные помещения, промерзание стыков наружных панелей в местах, где крепится ограждение балкона в стыках панелей, шиферная крыша, ригели и колонны выступают за пределы стен, что создаёт неудобства при ремонте
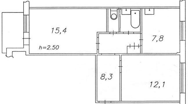
Планировка квартир
Планировка квартир в серии 111-142 (Ленинградки) выглядит следующим образом:
| Количество комнат | общая | жилая | кухня |
|---|---|---|---|
| 1-комнатная квартира | 33-36 | - | 7-8 |
| 2-комнатная квартира | 46-52 | - | 7-8 |
| 3-комнатная квартира | 60-68 | - | 7-12 |
| 4-комнатная квартира | 67 | - | 7-8 |
Статистика
В истории советского домостроения строительство серийного жилья стартовало в конце 40-х годов. Всеобщая стройка типовых серий домов началась в начале 50-х годов. Официальная статистика приводит следующие цифры: более 70% всех жилых помещений в России составляют типовые жилые дома. Количество домов серии по годам строительства:
| Год | Количество домов | Площадь |
|---|---|---|
| 1940 - 1950 | 1 | 5 355 м2 |
| 1960 - 1970 | 5 | 23 695 м2 |
| 1970 - 1980 | 95 | 397 351 м2 |
| 1980 - 1990 | 130 | 529 778 м2 |
| 1990 - 2000 | 4 | 18 795 м2 |
| 2000 - 2010 | 1 | 4 639 м2 |
| Итого | 236 | 979 613 м2 |
Этажность домов
| Этажей | Количество домов |
|---|---|
| 5 | 236 |
| Итого | 236 |
География строительства
| Регион | Населённые пункты |
|---|---|
| Республика Хакасия | Саяногорск (2) |
| Свердловская область | Североуральск (1) |
| Пермский край | Пермь (1) |
| Кемеровская область | Юрга (22)•Гурьевск (3) |
| Томская область | Томск (1) |
| Красноярский край | Красноярск (184)•Северо-Енисейский (1)•Дивногорск (1)•Норильск (4)•Шарыпово (1)•Солнечный (2)•Емельяново (1)•Дудинка (11)•Кожаны (1) |





Комментарии
Оставьте ваш комментарий.
Ещё никто не оставил комментарий, вы будете первым.