Основное отличие серии 1МГ-601Ж — многоступенчатые секционные блоки. Данная разновидность многоквартирных домов использовалась в основном для гостиниц и коммерческих сооружений. На территории Москвы в зданиях версии 1МГ-601Ж располагается гостиница Севастополь, Академическая, общежития НИУ МГСУ и другие. Основные параметры типа 1МГ-601Ж совпадают с другими распространенными типами серии 1МГ-601. Из отличительных характеристик можно назвать широкие внешние стены, выложенные из блоков крупного размера, наличие ряда окон в торцевой стене, расположение окон во всю ширину полушага. В возведении зданий типа 1МГ-601Ж использовалась технология, по которой несущие стены располагаются друг от друга на расстоянии 6 м и укрепляются колоннами 40х40 см через каждые 4,5 м.
Подробная информация о серии
в 1-ком. квартирах относительно большая площадь кухонь, на первых этажах предусмотрены места для хранения лыж, колясок, велосипедов, наличие грузопассажирского лифта
небольшая площадь кухонь в 4-ком. квартирах и во многих 3-ком., в одном из вариантов 2-ком. квартир - смежные комнаты
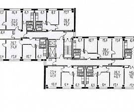
Планировка квартир
Планировка квартир в серии 1МГ-601Ж выглядит следующим образом:
| Количество комнат | общая | жилая | кухня |
|---|---|---|---|
| 1-комнатная квартира | 26-38 | 14.5-20 | 7-10 |
| 2-комнатная квартира | 39-56 | 22-36 | 6.2-7.9 |
| 3-комнатная квартира | 53-72 | 37-52 | 6.3-9.5 |
| 4-комнатная квартира | 71 | 48-50 | 6.9 |





Комментарии
Оставьте ваш комментарий.
Ещё никто не оставил комментарий, вы будете первым.